Оружие и Доспехи :

Пресс для склеивания фанерного щита

  автор: SHARIK  |  22-сентября-2011  | 51 583 просмотра | 4 комментария
загрузка...

Постановка проблемы

Здесь описан способ изготовления пресса для выгибания фанерного щита. Почти все геральдические щиты 13-14 века были выгнутой формы, также по большей части выгнутыми были и миндалевидные щиты 11-12 веков. В те времена их делали из досок. Но в данной статье пойдет речь только об изготовлении фанерного щита. Листы фанеры продаются плоской формы, и нам необходимо будет выгнуть фанеру. Но гнущийся лист довольно тонкий, а лист фанеры достаточной толщины мы не согнем. Поэтому нам необходим пресс для одновременного склеивания и выгибания заготовки щита.

Внимание! В этой статье подробно описано как сделать пресс, о том как сделать щит подробно описано тут Изготовление фанерного щита.

Я хотел сделать несколько выгнутых щитов. У меня уже было много 61х122 см (2x4 фута) листов фанеры оставшихся от предыдущих работ, и вот что я придумал. Оно работает очень хорошо, и быстро справляется с гнутьем пары кусков фанеры 6,3 мм (1/4 дюйма) толщиной. Это позволяет делать щиты различных размеров, до 66х120 см (26" х 47 ").

щиты рыцарские

Я должен признаться, что данное изделие может показаться более сложным, чем некоторые другие проекты прессы щитов, которые можно сделать. Моей целью было сделать пресс, который надежно согнет фанеру, не распространит волнистость по краям, и произведет ровный гнутый щит. Прес прост в использовании и производит последовательную заготовку щита. Это не означает, что мой пресс для щита  лучше или хуже, это именно то, что я придумал, и это работает хорошо для меня. Все пресса в значительной степени работают так же, удерживая фанеру  в согнутом состоянии пока клей высыхает.

Этапы сборки пресса для щита

наверх

Я пытался придумать что-то вроде шикарной системы зажимов, но после применения некоторых разных идей, я решил обтягивать заготовку ремнями. Они очень хорошо справляются с гнутьем фанеры. Я использую 4 ремня. Я также использую 5 досок 10 см шириной и 120 см длиной (1/3 и 4 фута), чтобы  ремни дали равномерное давление на фанеру. Я клею и зажимаю щит около 15 минут, пока клей не взялся.

прес-форма для гнутья фанеры

Вы можете заметить, что я уже выпилил заготовку щита из фанеры, прежде чем согнуть ее, так гораздо проще!

Фанеру мы можем использовать стандартного типа AC или BC, толщиной 6,5 мм (1/4 дюйма). Не пытайтесь использовать листы фанеры из таких деревьев как береза ​​или дуб, они просто не будут нормально гнуться, поскольку их волокнистая  структура очень жесткая. Когда два 1/4 дюймовых куска фанеры склеиваются они делают довольно жесткий кусок изогнутой фанеры, толщиной 1.3 см (1/2").

гнутый фанерный щит

Это просто еще один снимок процесса сгибания заготовки щита под прессом. На данный момент ремни запущены все далеко вокруг пресса, и достаточно легко будет  разглядеть способ, которым надолго прикрепляют ремень на боковой стороне.

Вы также можете видеть  здесь некоторые интерессные детали производства.  Резьбовые отверстия, которые вы видите здесь под 1x3 шурупы с затупленным и скругленным концом, они сделаны выполнены над слотом из досок. И пространство в этом слоте в 1.3 см (1/2"). В эти отверстия вкручиваются шурупы для прижимания склеиваемых  краев фанеры.

Две фотографии справа и снизу показывают, готовый пресс для щита. Я сфотографировал их так что вы можете сравнить их с чертежами ниже. Надеюсь, с этими фотографиями и моими чертежами вы сможете собрать пресс без особых проблем. (Примечание: С тех пор я увеличил высоту ребер изгиба от 11.4 см (4 1/2") , на 16.5 см (6 1/2") для более выраженного изгиба, остальные чертежи отражают эти изменения).

пресс для сгибания фанеры
пресс для склеивания щита

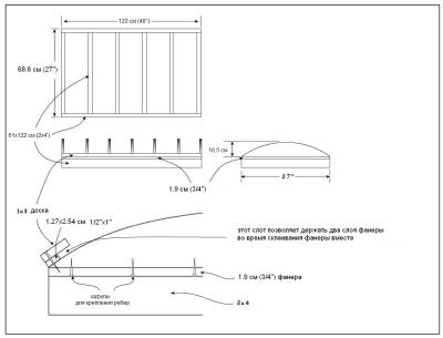
Первое, что вам нужно сделать, это порезать 61х122 см листы фанеры и собрать их. Вам нужно будет взять из них две заготовки в  122 см (48") и 16.5 см (6 1/2") шириной, в целом ширина пресса 68.6 см (27"). Я на самом деле, действовал на глаз чтобы в значительной степени собрать все, но получилось все достаточно ровно как по шаблону.

Теперь мы хотим вырезать 7 изогнутых ребер. Я использовал доски сосны толщиной 1.9 см (3/4"). Для разметки я использовал длинный шнурок, который прибил на одном конце, и связал с карандашом на другом конце, чтобы получить нужный радиус.

Затем вам нужно вырезать кусок фанеры, толщиной 1,9 см (3/4"), которая будет служить основанием для изгиба доски и базой для пресса. Этот кусок необходимо будет сократить до 68.6 на 122 см (27"х48"). Если так получается, что у вас уже есть кусок шириной 61х122 см фанеры, вы можете использовать его и добавить еще один кусок 7.6х122 см (3"х 48"), чтобы закончить. Если вы внимательно посмотрите на мою работу вы увидите, что это то, что я и сделал.

зажимы

Теперь вы приложите вырезанные ребра к фанерному основанию при помощи винтов, вкручивая их снизу. Убедитесь в том что сверло не расщепило сосновые ребра. Я также использовал клей здесь. Убедитесь, что ребра стоят ровно.

После того как вы все  ребра прикреплены к фанерному основанию, вы прикрепите фанерное основание к раме с помощью винтов.

Вот так! .. почти у цели! Последним этапом является крепление 1.3 см (1/2") промежуточной доски на днище и 10 см (1x3') слота на боковой стороне. Я использовал кусок дуба здесь для прочности. Чертежи ниже и фотографии выше, должны показать, где и каким образом это происходит.

Хорошо, теперь у вас есть собственный щитовой пресс. Вам также понадобится около 4 или 5 храповиков в 10,1 см(1x3) ширины для поддержки поясов, и несколько крюков для крепления поясов.

Храповики изображены на рисунке слева.

Применение пресса для изготовления щита

наверх

Вам понадобится два листа 61х129.5 см  (2x4 1/4 фута) фанеры и некоторое количество столярного клея (я использую titebond II). Хотя фанера состоит из разнонаправленных слоев  древесины склеенной в противоположных направлениях, все же наружные листы всегда с параллельно направленными волокнами. И поэтому фанера сгибается легче в направлении перпендикулярном волокнам чем в параллельном. Если придется сократить часть или получить один вырез, то делайте так  как показано ниже.

Для нанесения клея хорошо применить дешевую зубную щетку. Я просто сделал себе, взяв 3,8 см (1 1/2") кисть и отрезал от неё 1,3 см  (1/2") щетины, и получил хорошую жесткую кисть для нанесения клея.

волокна древесины клей и кисточка

Большинство листов фанеры имеют хорошую и плохую сторону. Плохая сторона имеет сучки и завилковатости. Хорошая сторона должна идти на наружные стороны щита. Осмотрите листы фанеры пока они еще не согнуты, и подберите хорошие и плохие стороны. Для достижения наилучших результатов не проектируйте щит так, чтобы он проходил весь путь до краев листа фанеры. Другими словами я бы не сделать какой-либо щит больше 58.4х119.4 см (23"х47") для листа размером 61х129.5 см (2х4') фанеры.

щит вырезанный из фанеры
Картинка показывает как две заготовки под щиты нарисованных на листе 61х129.5 см (2х4') фанеры. Их  размеры 55.9 см (22") в ширину и 58.4 см (23") в высоту.

Мой щитовой пресс всегда всегда расположен на полу. Я сначала беру пояса и оборачиваю их вокруг пресса и готовлю к работе, прежде чем начать склеивание.

На следующем шаге вы должны размазать слой клея на обе внутренние поверхности фанерных заготовок. Слой клея не должен быть тонким, как для склеивания бумаги, но он не должен быть очень толстым. Ниже, на левом снимке клей наносился с "плохой" стороны фанеры. После клей наносится на другой кусок фанеры и полученная заготовка устанавливается в пресс. Вы можете заметить что я закрываю края вощеной бумагой. Это гарантирует, что я не приклею щит к прессу.

склейка щита склейка щита
гнутьё фанеры гнутьё фанеры

Фотография выше слева, показывает как заготовка из клееной фанеры установлена на место в слоте и на ребра.

Я устанавливаю фанерную заготовку в слот плотно и немного сгибаю её вниз. Я затем вставляю зажим 1x3  под ремень длиной 122 см (4') и натягиваю постепенно сгибая заготовку. И при этом затягиваю храповики, пока они не загнут фанеру в свою кривую. Возможно, вам придется настроить храповики снова. Далее вкрутите затупленные шурупы в подготовленные отверстия на слоте для равномерного нажима на листы фанеры. Я всегда равномерно затягиваю храповики и зажимы, так чтоб края были ровными. Изображение, справа вверху, показывает, как наша заготовка под щит готова сидеть в течение нескольких дней.

Посмотрите две фотографии ниже для некоторых подробностей.

изготовление фанерного щита

Картинка показывает зажимное действие с близкого расстояния. Как вы можете видеть изогнутые ребра фанерной заготовки согнуты очень равномерно. Нет сдвигов или волн!

заготовка для изготовления щита
фанерный щит

На рисунке показано как одна из заготовок щита вырезана. В настоящее время края готовы быть отшлифованы. Две фотографии ниже просто показывают края "перед шлифованием краев" и "после шлифованием краев" для справки.

изготовление щита отшлифованый край щита

Чертежи пресса для щита

наверх
гнутьё фанеры
пресс для гнутия щита
чертежи пресса для гнутья фанеры
наверх

Это мой перевод страницы: Ye olde Gaffers: Shield press 

загрузка...
  Голосов: 5
 

Вы просматриваете сайт Swordmaster как незарегистрированный пользователь. Возможность комментирования новостей и общение на форуме ограничено. Если всего-лишь нашли ошибку и хотите указать о ней — выделите её и нажмите Ctrl+Enter. Для того чтобы пользоваться полным функционалом сайта и форума, рекомендуем .

Информация
Посетители, находящиеся в группе Прохожие, не могут оставлять комментарии к данной публикации.
  1.   Олег 
    7 октября 2011 15:02 | Ответов: 0

    Гpуппа: Прохожие
    Pегистрация: --
    о супер можешь еще какие небуть шиты и четы зделать мне оч нужно на проэкт

    Здарова.мне нужна помощь с праэктом хочу зделать меч и щит из дерева!нужны чертижи!
      ¤ жалоба   
  2.   SHARIK   
    8 октября 2011 10:32 | Ответов: 0

    Гpуппа: Администраторы
    Pегистрация: 30.12.2006
    • 646
    • 281
    Олег,
    И тебе не хворать. А статья про изготовление деревянного щита из досок появится со временем, следи за обновлениями сайта. shield-sword
    И так уж нужен ли тот щит из дерева - если можно и из фанеры? Статья уже опубликована

    --------------------
      ¤ жалоба   
  3.   Тихон 
    28 января 2012 19:55 | Ответов: 0

    Гpуппа: Прохожие
    Pегистрация: --
    Доброго времени суток.Благодарствую за ваши труды!Очень полезный сайт.Много хорошей и редкой информации.Есть вопрос по поводу ремней для затяжки щита,какова их длина?
      ¤ жалоба   
  4.   компас 
    24 декабря 2018 12:32 | Ответов: 0

    Гpуппа: Прохожие
    Pегистрация: --
    Что за хрень на последней картинке? Как при радиусе 120 см. получить высоту сегмента 16? длина шнурка около 50 см.
    и 40 дюймов это только 101 см
      ¤ жалоба